
Пояснювальна записка, нормативи, кліматичні параметри та перелік креслень комплекту ОВ.
Сайт знаходиться на стадії тестування. Конфігуратор та інші функції можуть працювати не коректно. Якщо ви виявили помилку, будь ласка, повідомте нас.
Приклад повного робочого пакета HVAC: короткий опис, деталізоване пояснення та візуальні сторінки в одному матеріалі.
Превʼю (короткий опис)
Робочий проект систем вентиляції та кондиціювання житлового будинку, що забезпечує повноцінний повітрообмін, очищення повітря та підтримання комфортної температури протягом року. Рішення базується на механічній припливно-витяжній вентиляції та мульти-спліт кондиціюванні, з урахуванням енергоефективності, акустичного комфорту та готовності до монтажу.
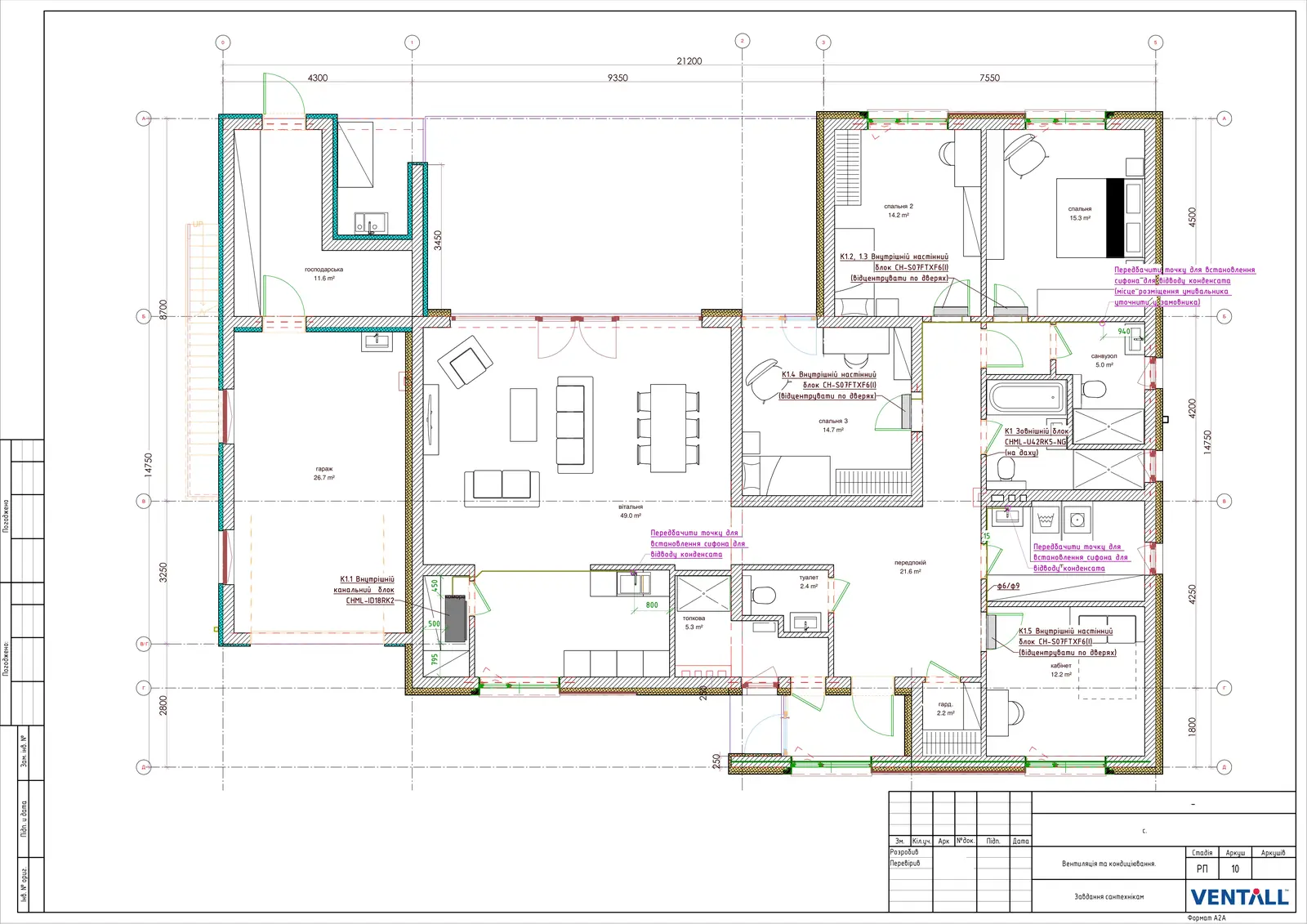
Це комплексний робочий проект інженерних систем вентиляції та кондиціювання, розроблений для створення стабільного та здорового мікроклімату в житловому будинку. Документація охоплює всі етапи реалізації — від технічних параметрів і схем до специфікацій обладнання та монтажних завдань, що дозволяє виконати роботи без додаткового проектування.
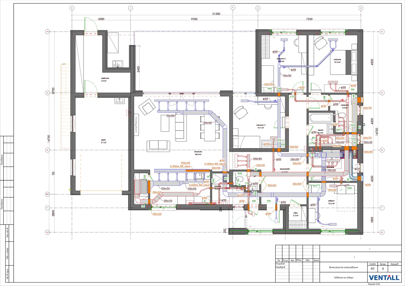
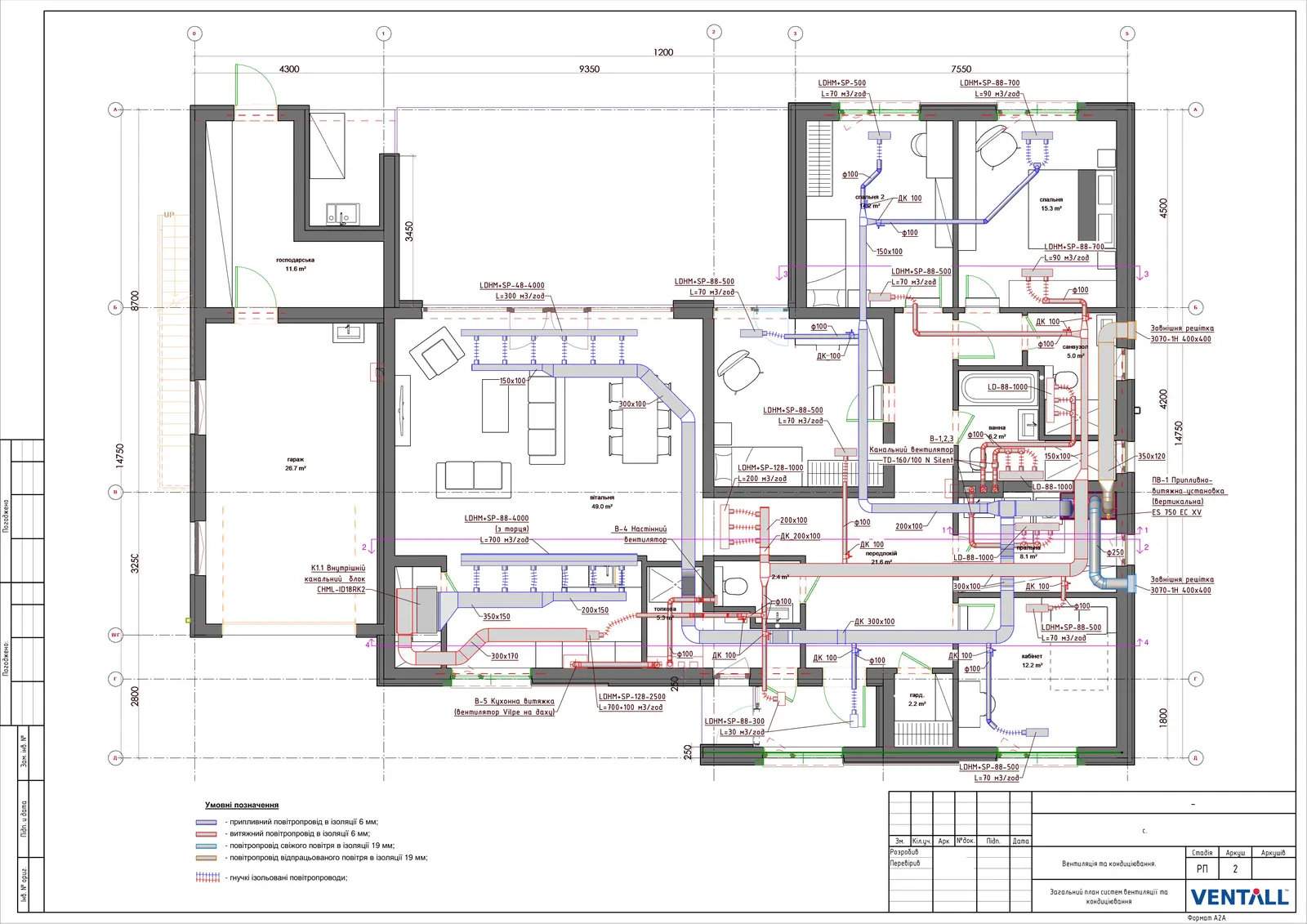
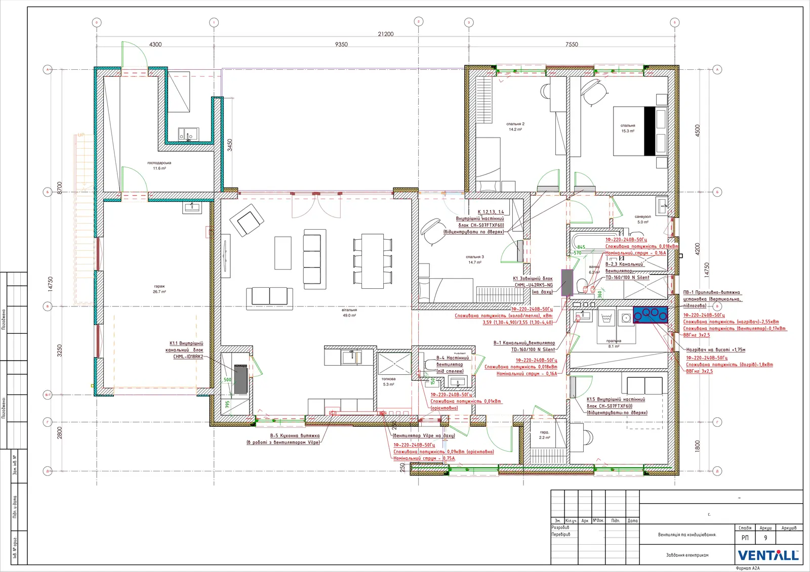
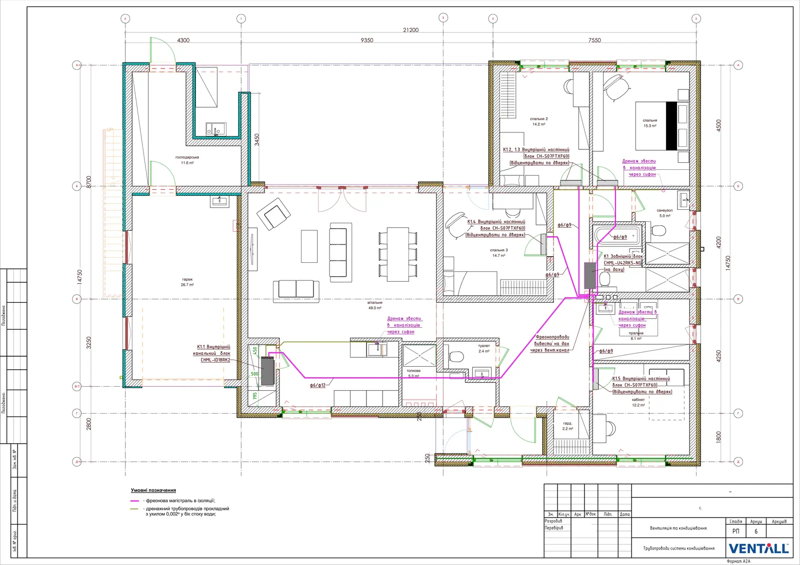
У проекті застосовано централізовану припливно-витяжну вентиляцію, яка забезпечує постійну подачу свіжого повітря в житлові приміщення та видалення відпрацьованого повітря з кухні, санвузлів і технічних зон. Для підтримання температурного комфорту передбачено систему кондиціювання з внутрішніми блоками в кімнатах і зовнішнім блоком поза житловим простором. Така конфігурація дозволяє рівномірно охолоджувати або підігрівати повітря без шуму та протягів.
Проект враховує ключові експлуатаційні фактори: енергоефективність, шумоізоляцію, теплоізоляцію повітропроводів, відведення конденсату, електроживлення обладнання та інтеграцію із суміжними інженерними системами. Передбачені плани, ізометричні схеми, розрізи та специфікації матеріалів підтверджують готовність рішення до практичної реалізації на об’єкті.
У результаті система забезпечує якісну вентиляцію, контроль температури та комфортні умови проживання в будь-який сезон, відповідаючи сучасним вимогам до житлових інженерних систем.
Залиште контакт, і ми зв’яжемося з вами, щоб обговорити рішення для вашого об’єкта.